 |
 |
……………………………………………………………………………………………………………………
…………………………………………………………………………………………………………………… |
 |
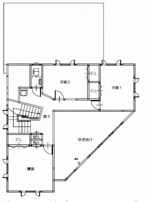
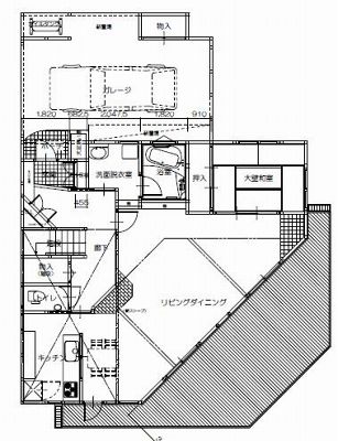
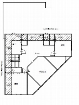
八ヶ岳富士見高原 F・K Home H Selection
基本設計 第2次 (案) 2005.12.16現在
1.建築面積 24.04坪 (ガレージ除く)
2.1階床面積 23.48坪
3.2階床面積 16.74坪 (吹き抜け除く)
4.延べ床面積 40.23坪
課題の整理
1. 階段とトイレの位置関係の見直し
2. 玄関ウォーインクローゼットの設置
3. ウッドデッキの形状
4. 2階フロアー・吹き抜けの形状の検証
5. カラオケルームの検討
など検討が課題として再協議となりました。しかし実施設系へ向けての着実な設計が行われており今後の第3次(案)が楽しみになってきています。
|
 |
 |
……………………………………………………………………………………………………………………
…………………………………………………………………………………………………………………… |
 |
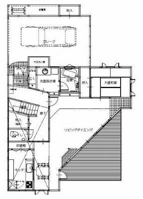
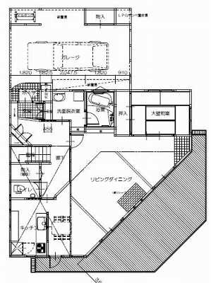
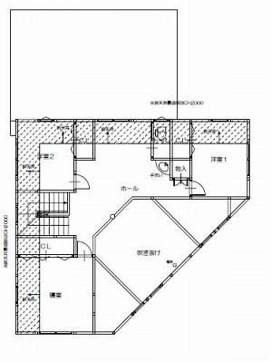
八ヶ岳富士見高原 F・K Home H Selection
基本設計 第3次 (案) 2005.12.23現在
1.建築面積 26.55坪 (ガレージ除く)
2.1階床面積 26.17坪
3.2階床面積 17.06坪 (吹き抜け除く)
4.延べ床面積 43.23坪
課題の整理
いよいよ実施計画へ向けて具体的な姿が見えてきました。全体的なH Selection建築計画のイメージはほぼ完成です。
残る課題は・・・・。
1.屋根の形状(積雪対策)
2.屋根材の検討・洋瓦
3.ウッドデッキ形状
4.カラオケルームの仕様
5.薪ストーブの設置に関して
6.2階ホールの検討
7.物入れ・クローゼットの検討
8.キッチン形状の検討
9.リビングルームの検証
等が検討課題として実施設計へ向けて再協議が行われます。心配事はだんだん家が大きくなっていくことです。
この際頑張って広々空間を演出することが重要となってきています。
|
 |
 |
……………………………………………………………………………………………………………………
…………………………………………………………………………………………………………………… |
 |
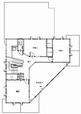
八ヶ岳富士見高原 F・K Home H Selection
基本設計 第4次 (案) 2006.1.11現在
1.建築面積 26.92坪 (ガレージ除く)
2.1階床面積 26.41坪
3.2階床面積 19.53坪 (吹き抜け除く)
4.延べ床面積 45.94坪
課題の整理
ほぼ基本設計は完成しました。
今後は実施設計へ向け詳細を詰めていくことに
なります
残りの課題は
1.薪ストーブの位置
2.車庫内プロパンポンベの場所の確保
3.車庫内の物入れ・屋根の変更
4.2階洗面所の位置の変更
等が課題として残っていますが、設計変更に関しては大きな課題はなく順調に実施設計へ向けて協議が行われています。
以降は建築費の見積もり・敷地の抜根・伐採の日程調整を行い、3月中旬までには建築確認申請を行う予定です。
竣工は7月末を予定しています。 |
 |
 |
……………………………………………………………………………………………………………………
…………………………………………………………………………………………………………………… |
 |
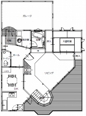
八ヶ岳富士見高原 F・K Home H Selection
基本設計 最終 (案) 2006.1.23現在
1.建築面積 26.92坪 (ガレージ除く)
2.1階床面積 26.41坪
3.2階床面積 19.53坪 (吹き抜け除く)
4.延べ床面積 45.94坪
課題の整理
基本設計は完成です。この図面を基礎に実施設計を行います。
今後は実施設計段階での問題点の整理を行います。
そして建築確認申請を行うための図面作りへと進みより具体的なH Selectionの立体的な姿が見えてきます。
みなさん、お楽しみに!!
|
 |
 |
……………………………………………………………………………………………………………………
…………………………………………………………………………………………………………………… |
 |
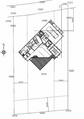
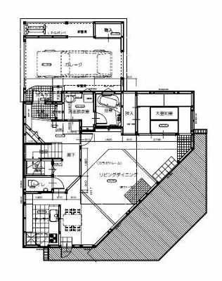
八ヶ岳富士見高原 F・K Home H Selection
実施設計 完成 2006.3.15現在
1.建築面積 26.92坪 (ガレージ除く)
2.1階床面積 26.41坪
3.2階床面積 19.53坪 (吹き抜け除く)
4.延べ床面積 45.94坪
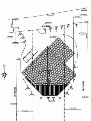
今後の建築スケジュール
7月下旬竣工予定
4月10日(月)敷地の整地・樹木の抜根、伐採
以後、基礎工事後5月上旬に棟上げ予定。
工事中に詳細な図面の点検と薪ストーブの設置工事の打ち合わせ。
そして、いよいよ7月下旬に完成引き渡しの予定です。
今後は建築工事のアルバムを載せていく予定です、行程ごとに紹介していきますのでF・K Home建築状況をお楽しみにしてください。
|
 |
 |
……………………………………………………………………………………………………………………
…………………………………………………………………………………………………………………… |