ようこそF・K Homeへ 水抜き不要 全天候型非氷点下住宅  夏涼しく冬暖かい優しい別荘 モデルハウス見学受付中
  
 
【 寒冷地仕様 別荘建築のための予備知識とは 】


  第 19 回 施主年齢と間取り配置 

 私達が別荘を建築しようとする場合まず考えるのはその間取りです。
 
建て売り別荘や中古物件を購入する際は与えられた物件の間取りで納得するほかありませんが、新築を設計建築する場合本来は以前にも述べましたが、建物自身の「性能」についての検討を優先すべきですが、なかなかそうはいかず、どうしても建物の「間取り」に目を奪われ気味です。

 そこで、今回は別荘を建築する場合に注意しなければならない「間取り」とはどのような点に注意すべきか等を考えていきます。

 憧れの別荘がいよいよ現実的なものとなり、いざ建築となると建築しようとしたときの状況によってその建物の大きさや形、外観は和風か洋風かといったことがイメージとして描かれ、その年齢・家族構成・友人や知人、さらには別荘生活をどのように過ごすのか!といったことが間取り等を考える上での与件となるはずです。

 ということは、その時点での「拘束」された状況に無関係に建築与件を発想することは非常に困難と言うことです。 

 建築時点の年齢での状況に応じた別荘生活を送ろうとするわけですからそれはそれでもっともなことなのです。

 しかし、前にも書きましたが別荘の建築計画は時として数年単位で計画が進み当初考えていた自分を取り巻く状況とは違う環境になっていることさえあり、別荘計画そのものが根底から見直しを迫られたり、イメージされた別荘生活が送れなくなったりと様々なことが起こり、当初の計画時点では「正解」であった計画案が「不正解」となることもしばしばです。

 私の場合も、私達家族・両親・友人を中心とした生活スタイルの延長に別荘生活をイメージし計画を練ってきました。ところが計画中に父親が脳梗塞で倒れ母親が病弱になったりと刻々と状況が変化し、その都度建築計画の見直しを迫られました。

 先のことを考えるときりがありません。
 しかし、想定できることはなるべく建築設計の与件の中に落とし込んでおくことが大切です。建て主たる夫婦自身も年老いて行くわけです。親は「老化」がすすみ、子供たちは自立していきます。すると別荘生活の目的も変化していくものなのです。ということはまず基本は、施主自らが年老いていくことを想定した家の配置計画が大切と言うことです。

 建物に入るときの車のアプローチの作り方から各部屋の間取りは出来る限り体に負担のない作りとしなければなりません。

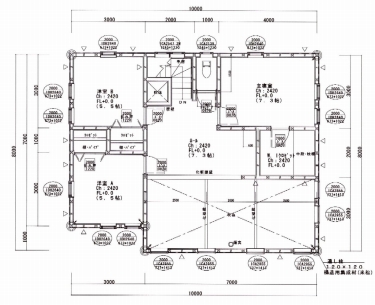
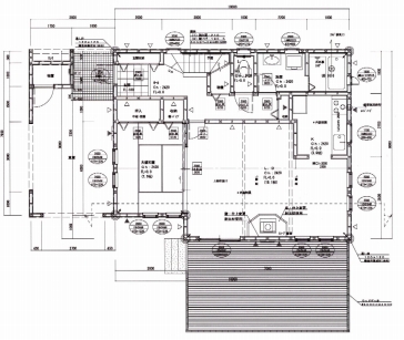
  一階平面図・室内写真ページへ 2階平面図・室内写真ページへ
            1階 平面図                       2階 平面図


 景観重視で何段もの急な階段を上らなければたどり着けない別荘を目にすることがよくありますが、いつも「大変だろうな〜」と考えさせられてしまいます。
 若いうちは何でもないことが、ちょっと体が不自由になっただけで、生活が一変し一段・二段の階段がとても体に負担に感じることがあるものです。

 従って、一番の「贅沢」は平屋で広いお家・・・ということになりますが、なかなか予算の関係で難しいものです。

 ですから、せめて2階家であっても一階部分だけで生活できる間取りを考えることをお勧めします。
 平面で暮らせる室内の配置を心がけることが大切です。

 体が元気なうちは二階も含めて生活し家全体を有効的に使い分け、もしもの時は一階だけでも生活できる間取りができれば安心して別荘生活を長く楽しむことが出来るはずです。

 目の前の状況だけに捕らわれるのではなく、如何に末永く別荘生活を楽しむためにはどのような工夫が必要なのかを将来の自分たちの姿をイメージすることが重要です。

 どこで妥協しどこで納得するかは非常に難しいものです。
 予算の問題もあります。
 ですが、妥協してはならないことが別荘作りには幾つかあるものです。

 折角建てる別荘ですので出来ることなら代々に渡って利用できる別荘を作りたいものです。富士見高原の別荘地に生活してみてあまりに無計画に建てたとしか考えられない別荘を数多く見ることがあります。そのような別荘に限って利用率は低くオーナーさんと合うことはほとんどありません。

 使ってこそ活きる別荘です。
 使いやすい別荘とはどのような仕様の建物なのか施主年齢を基礎とした柔軟な発想を生かして「活きた別荘」作りについて考えてみることが大切だと思います。

 ということで、次回は「 第20 回 10年・20年後を見こした設計を・・ 」をお送りします。